Neubau Erstbezug: Doppelhaus in Quickborn.

25451 Quickborn, Doppelhaushälfte zum Kauf

Kontaktdaten

Gina Hennies Freifrau von Teubern, Amoreal GmbH

Objektdaten

  • Objekt-ID
    GiH-2026148225
  • Objekttypen
    Doppelhaushälfte, Haus
  • Adresse
    25451 Quickborn
    (Quickborn, Kreis Pinneberg (Stadt))
  • Wohnfläche ca.
    123,94 m²
  • Balkon-/Terrassen­fläche ca.
    5,88 m²
  • Grund­stück ca.
    127,34 m²
  • Zimmer
    4
  • Schlafzimmer
    3
  • Badezimmer
    1
  • Terrassen
    1
  • Zustand
    Erstbezug
  • Käufer­provision
    3,57 % inkl. ges. MwSt.
  • Kaufpreis
    600.000 EUR

Ausstattung / Merkmale

  • ✓ Kein Keller
  • ✓ Terrasse

Energieausweis

  • Energieausweistyp
    Bedarfs­ausweis
  • Gültig bis
    06.08.2035
  • Gebäudeart
    Wohngebäude
  • Baujahr lt. Energieausweis
    2025
  • Endenergie­bedarf
    17,20 kWh/(m²·a)
  • Energie­effizienz­klasse
    A+
0 25 50 75 100 125 150 175 200 225 250+ H G F E D C B A A+ H G F E D C B A A+ Endenergiebedarf 17,20 kWh/(m²·a)

Objekt­beschreibung

Beschreibung

Neubau Erstbezug!

Mit einem Erstbezug erwarten Sie moderne und hochwertige Ausstattungsmerkmale auf einer großzügigen Wohn- und Nutzfläche von ca. 124 m².

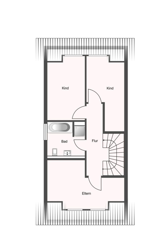
Das Haus verfügt über vier geräumige Zimmer, darunter drei komfortable Schlafzimmer und ein elegantes Badezimmer sowie weitere Fläche im Dachgeschoss, die zum Beispiel zum Arbeiten genutzt werden kann.

Das Herzstück bildet der offene und lichtdurchflutete Wohn-, Ess- und Kochbereich lädt zum Entspannen und Beisammensein ein und bietet Zugang auf die Terrasse.

Auf dem insgesamt 910 m² großen Grundstück wurden dieses Jahr zwei Doppelhäuser mit insgesamt vier Einheiten fertiggestellt. Zwei der hinteren Einheiten stehen aktuell noch zum Verkauf.

Überzeugen Sie sich gerne selbst bei einer Besichtigung.

Ausstattung

  • Neubau Erstbezug
  • Durchdachter Grundriss
  • Moderne Ausstattung
  • Verputzte Wände
  • Eichenparkett
  • Vollbad mit Dusche und Wanne
  • Gäste WC
  • Offener Wohn-, Ess- und Kochbereich

Sonstiges

Rechtshinweis/Haftungsausschluss:
Dieses Exposé wurde mit größtmöglicher Sorgfalt zusammengestellt. Trotzdem kann keine Haftung für die Richtigkeit, Vollständigkeit und Aktualität der Angaben übernommen werden. Alle Angaben erfolgen ohne Gewähr. Die Darstellungen sind unverbindlich und dienen lediglich der Information. Rechte Dritter sind vorbehalten. Jegliche Haftung für Schäden, die direkt oder indirekt aus der Verwendung dieses Exposés entstehen, ist ausgeschlossen. Die Angaben zum Objekt erfolgen im Namen unseres Auftraggebers und dienen zur Erstinformation.

Lage

Die Doppelhaushälfte befindet sich in Quickborn in einer gewachsenen, überwiegend wohngeprägten Umgebung mit angenehmer Nachbarschaft. Das Wohnumfeld ist geprägt von Ein- und Zweifamilienhäusern sowie viel Grün und bietet damit eine ruhige, familienfreundliche Atmosphäre.

Einkaufsmöglichkeiten für den täglichen Bedarf, Kindergärten, Schulen sowie ärztliche Versorgung sind in Quickborn und den angrenzenden Bereichen gut erreichbar. Auch Freizeit- und Erholungsangebote wie Spazier- und Radwege sowie nahegelegene Grünflächen sorgen für eine hohe Lebensqualität.

Die Verkehrsanbindung ist ebenfalls vorteilhaft: Über die örtlichen Hauptverkehrsachsen bestehen gute Verbindungen in die umliegenden Städte und insbesondere in Richtung Hamburg. Der öffentliche Nahverkehr ist in der Regel schnell erreichbar und ermöglicht eine komfortable Anbindung für Pendler.

Die ungefähre Position der Immobilie auf Google Maps ansehen (Link auf externe Website)

Direktanfrage

* Pflichtangaben
 SSL-verschlüsselt
Immobiliendaten-Import und Darstellung für WordPress: WP-ImmoMakler