Charmantes Dachgeschoss mit Galerie

22417 Hamburg Langenhorn, Dachgeschosswohnung zum Kauf

Kontaktdaten

Gina Hennies Freifrau von Teubern, Amoreal GmbH

Objektdaten

  • Objekt-ID
    GiH-2026154825
  • Objekttypen
    Dachgeschosswohnung, Wohnung
  • Adresse
    22417 Hamburg Langenhorn
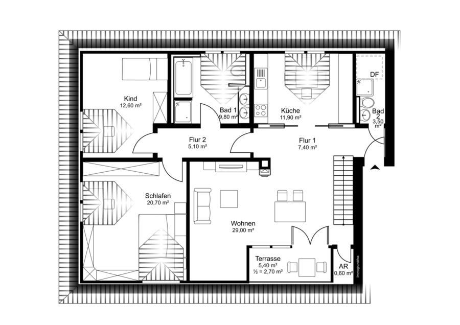
  • Wohnfläche ca.
    129,40 m²
  • Zimmer
    4
  • Balkone
    1
  • Käufer­provision
    3,57 % inkl. ges. MwSt.
  • Hausgeld
    352,00 EUR
  • Kaufpreis
    720.000 EUR

Ausstattung / Merkmale

  • ✓ Balkon
  • ✓ Keller
  • ✓ Parkettboden

Objekt­beschreibung

Beschreibung

Gemütliche Dachgeschosswohnung mit Galerie, die fortlaufend liebevoll modernisiert wurde.

Ausgestattet mit amerikanischem Kirschbaum Holzparkett, hohen Decken und Holztüren, Holzfenstern, nachträglich angebrachten Stuckverzierungen, verputzten und teilweise tapezierten Wänden, abgehängten Decken mit Deckenspots, Einbauschränken.

Offener Ess- und Wohnbereich mit Kaminofen und Zugang auf den Balkon mit Westausrichtung, Bankirai und Markise.

Offene Wohnküche maß und handgefertigt im französischen Landhausstil mit Marken Geräten und durch eine Schiebetür trennbar.

Zwei weitere Zimmer befinden sich im hinteren Bereich der Wohnung, die als Schlaf- und Arbeitszimmer genutzt werden.

Die Galerie bietet zusätzlichen Raum und verleiht der Wohnung einen besonderen Charme.

2 Kellerräume gehören zur der Wohnung.

Ausstattung

  • Offene Raumaufteilung
  • Stilvolle maßgefertigte Wohnküche im französischen Landhausstil
  • Modernisiertes Gäste WC mit Dusche und Fenster
  • Großzügiges Vollbad mit Dusche und Badewanne
  • Galerie
  • Kirschbaum Holzparkett
  • Maßgefertigter Kaminofen aus 2025
  • Einbauschränke
  • Holztüren
  • 2 Kellerräume

Sonstiges

Rechtshinweis/Haftungsausschluss:
Dieses Exposé wurde mit größtmöglicher Sorgfalt zusammengestellt. Trotzdem kann keine Haftung für die Richtigkeit, Vollständigkeit und Aktualität der Angaben übernommen werden. Alle Angaben erfolgen ohne Gewähr. Die Darstellungen sind unverbindlich und dienen lediglich der Information. Rechte Dritter sind vorbehalten. Jegliche Haftung für Schäden, die direkt oder indirekt aus der Verwendung dieses Exposés entstehen, ist ausgeschlossen. Die Angaben zum Objekt erfolgen im Namen unseres Auftraggebers und dienen zur Erstinformation.

Lage

Die Dachgeschosswohnung befindet sich in Hamburg-Langenhorn, einem etablierten und zugleich angenehm grünen Stadtteil im Norden der Hansestadt. Die Umgebung ist geprägt von gewachsenen Wohnquartieren mit viel Freiraum, gepflegten Grünflächen und einer ruhigen, familienfreundlichen Atmosphäre – ideal für alle, die stadtnah wohnen und dennoch Wert auf Erholung im Alltag legen.

Einkaufsmöglichkeiten für den täglichen Bedarf, Bäckereien, Apotheken sowie ärztliche Versorgung sind in der näheren Umgebung gut erreichbar. Auch Kindertagesstätten, Schulen und weitere infrastrukturelle Angebote befinden sich im Stadtteil und tragen zu einer hohen Wohn- und Lebensqualität bei.

Die Anbindung an den öffentlichen Nahverkehr ist komfortabel, sodass die Hamburger Innenstadt sowie weitere Stadtteile zügig erreichbar sind. Ebenso profitieren Berufspendler von der guten Erreichbarkeit wichtiger Verkehrsachsen und einer schnellen Verbindung Richtung Airport sowie zu den umliegenden Bezirken. Insgesamt bietet die Lage eine ausgewogene Kombination aus urbaner Infrastruktur, guter Erreichbarkeit und naturnahem Wohnen.

Die ungefähre Position der Immobilie auf Google Maps ansehen (Link auf externe Website)

Direktanfrage

* Pflichtangaben
 SSL-verschlüsselt
Immobiliendaten-Import und Darstellung für WordPress: WP-ImmoMakler